
In the early settlement days of the Genesee River Valley, schools were built as the need presented itself. These were neighborhood schools within walking distance of the students’ homes, which could be quite a distance in the 1800s. (It’s likely the origin of stories told by grandfathers to their skeptical grandchildren who recount harrowing journeys of walking five miles uphill both ways to get to and from a one-room school.) Such was the case in the 1830s as farms and businesses were established along the Genesee River in what is now Letchworth State Park.
The first school was located above the bridge over Deh-ga-ya-soh Creek. This school was originally School District #10 and was in the Town of Portage, County of Allegany, at that time. There are no records to tell us when that first school was built, but it was before 1834. In Mildred Anderson’s book, Genesee Echoes, she writes that a special meeting was held on March 21, 1837, to discuss selling the old school and building a new one. She says the second school site was “on the south side of the road on the rise of ground above the creek.” It was located between the western gorge road and the ravine edge north of the Middle Falls, not too far from where the Pinewood Lodge is today. (See map below.) It was estimated the cost would be $241 for the building, including a wood stove and stovepipe. In 1839, the school building was sold, and the new one was constructed. In 1840, records showed that the school had 17 books in its library, and 61 students attended the school that year. However, the district had at least 82 children between five and sixteen years old in 1840. Many times, education was considered a luxury for hardworking farmers. The school was transferred to District #2 in 1846 and was now in the Town of Genesee Falls, Wyoming County. It would serve the students in the district until 1874.
When William Pryor Letchworth purchased his original property and took up residence at the Glen Iris, one of his early interests was in the education of the local children. In 1860, Mr. Letchworth contacted the Portageville and Castile Union Schools principal. He awarded monetary prizes to top students in various subjects—penmanship, chemistry, algebra, composition, spelling, math, and others. In addition, he established monetary awards for excelling students at the Genesee Wesleyan Seminary in Lima the following year. Always a man of generous hospitality, Letchworth invited children from the Pike and Portageville schools to the Glen Iris in 1861 for a flag-raising on the lawns and many other events to encourage the children from the area to “stimulate their ambition.”
W. P. Letchworth loved the classroom, and as his schedule allowed, he would teach a lesson on any number of subjects at District #2. His longtime secretary, Caroline Bishop, attended the school near the gorge and remembered Mr. Letchworth as a frequent visitor. One of the most notable lessons Miss Bishop recalled was a geography lecture, which he taught by drawing a map of Wyoming County on the blackboard with its 16 townships. She said that the lesson helped the students better understand geography’s relevance, which was a difficult subject for them. In addition, an organ (melodeon) was gifted to the school by Mr. Letchworth, along with music books to enrich the students’ curriculum.
By the late 1860s, the District #2 schoolhouse was in poor condition. Letchworth stepped in to provide a comfortable, warm room in a building near his home for the students to use during the winter months and school trustees began discussions to replace the old schoolhouse. In 1873, Mr. Letchworth, who was now a school trustee, brought a proposal for a new school. Letchworth considered the school’s existing site dangerous since it was so close to the gorge. He proposed to survey off a lot not to exceed ¾ of an acre located on what was known as the Old Burying Grounds on farmland once owned by Merrit Davis. This site is on the present-day road to the Trout Pond. The next component of the proposal was to erect the new school, complete with a fence and two privies. Letchworth would pay for all labor and materials to build the school. District #2 would then quitclaim the old school site to him, and he would deed the new site to the district for the sum of $1,000. It was to be paid in two payments: the first on October 1, 1873, and the second on April 1, 1874. The other trustees quickly agreed to the plan.
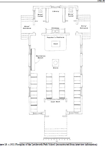
H. J. Selkirk, a well-known architect from Buffalo, New York, was retained to draw up the plans for what was to be a cutting-edge design for a rural school. His plans were based upon the prevailing educational theories, which vastly improved the common one-room schools in the 1800s. The main building was to be 30’ x 20’, with a rear annex of 10’ x 17’, complete with a cellar under the main building large enough for a play area during inclement weather. An advanced feature was a layer of tar paper on the interior walls for insulation. Large windows allowed plenty of natural light and were outfitted with counterweights for easy adjustment. An air vent with registers was built into a separate flue in the chimney to aid ventilation. Wainscoting and painted plaster walls provided a finished appearance, and a wood stove provided heating. The building, topped with a belfry, housed a bell to signal the beginning and end of the school day. In addition, a flag pole was set near the front of the school. However, there was no plumbing in the building, and water was hauled by students from a farm spring across the road.
The rear wing had three rooms. On the south side was the boys’ entrance, and this room had pigeonholes for storage of lunches and other items—slingshots and frogs, perhaps? Girls entered the building on the north side, which had the same amenities. The center room was for the teacher, where he or she kept school supplies, library books, and personal items. This room had a door on each end leading to the student entrances. Depending upon the gender of the teacher, a door to a student entrance was locked. For example, the door to the boys’ side was locked if the teacher was a woman, and the girls’ door was locked if the teacher was male. Every consideration was made to protect the privacy of boys and girls.
Separate playgrounds were designed for boys and girls, separated by a fence to protect the girls’ privacy. The board fence was sufficiently high enough and constructed in a manner to deter the boys from climbing or peeking, which was a significant concern in the late-Victorian era. The privies, located at opposite ends of the woodshed at the rear of the property, were two seats over pits. One adjustment made to the original plan was that the cellar was never dug, and a crawl space replaced it.
The schoolroom was large enough for 20-25 students at individual desks, which was a new notion. This was to eliminate possible distractions between a good student and an inattentive desk partner. The teacher’s desk was on a platform to ensure everyone could see the teacher, and there was a recitation bench. The reason for students entering from the rear of the building was to prevent rubbernecking from students already seated, thus eliminating more distractions from the classroom. The school received critical acclaim from educators and was featured in Barnard’s 1876 American Journal of Education, which publicized it as a “state of the art” rural school.
In the 1890s, one of the families in the district was the William Wallace family. William worked one of farms for Mr. Letchworth at that time. Mary and William Wallace, who were my husband’s great-grandparents had five children: William, Charles, Addison, Blanche, and Marian. At least four of them attended District #2 school just before the beginning of the 20th century. Evidence of their attendance is in the slideshow below. (The attendance/grades register and visitor register dated 1897and 1898 are from the Wallace Family Archives.) Those who grew up in the LSP/Castile area may also recognize other names on the record. And you’ll see that W. P. Letchworth and his secretary, Caroline Bishop visited the school.
After Mr. Letchworth’s death in 1910, the dwindling population in the Glen Iris area fell again when the tenant farms were vacated. Several modifications were made to the school by 1913. Plaster walls were now covered in green burlap. Even though many families installed electricity in their homes after 1910, the school was never electrified. Kerosene lamps mounted on wall brackets provided light from 1913 to 1934. Desks were replaced, and the seating capacity was reduced from 25 to about 16. The recitation bench was moved from the front to the south side of the classroom. Outdoor privies were replaced sometime between 1914-1921 with inside chemical toilets, which must have been a major renovation. These toilets emptied into steel tanks fabricated by Kaustine Tank & Furnace Company in Perry, New York.
Victorian ideas about separating boys and girls were no longer in vogue, and the fence separating the playgrounds was removed before 1914. The last structural change was in the late 1920s, when north-facing windows were moved to the south side and installed between the two existing windows. This was done to eliminate cross-lighting so that light fell over the left shoulders of students. It was thought to be an improvement at the time.
Side Note: For readers who knew Miss Edalyn Everett, principal of Letchworth Central School District’s elementary schools in the 1950s and 1960s, you may be interested to know that she was one of the last students to attend the Letchworth Park School.
District #2 initially taught grades 1-12, but high school students went to Castile High School after the turn of the century. In 1913, only five students attended, and in 1934, District #2 dismissed its last class. After that, all students were directed to Castile for instruction. The schoolhouse sat empty until 1947, when New York State became the owner, auctioning off the building and the contents. The structure was razed, and much of the lumber was repurposed for a building in Warsaw, New York.
In 1986, the Park planned to build a storage building on the school site, and the Rochester Museum and Science Center performed an archaeological study before its construction. The report is an interesting read, and several former students were interviewed, including Mildred Anderson, Edalyn Everett, and Sylvia Everett. A storage building fitting for the spot was constructed, and today, a sunny replica of the 1874 schoolhouse is on the Trout Pond Road for visitors to enjoy. The old school bell is on display in the park museum, as is the melodeon that Mr. Letchworth donated to the school in 1868, reminders of school days long past.
Resources:
Special Thanks to Karen at the Interpretive Dept., Letchworth State Park, for all her help gathering resource material from the park museum.
The Life and Work of William Pryor Letchworth by J. N. Larned
The Bulletin and Journal of Archeology for New York State, Spring 1987
Genesee Echoes by Mildred Anderson
















Interesting, albeit the disposition of the house when it was sold in 1947 is not quite accurate. It was purchased by my uncle Ralph Gibson who used the lumber in his newly purchased house between Castile and Silver Springs. Perhaps what he didn’t use was used elsewhere.
LikeLike
Thank you, Karen for that information. The records I found said part of the lumber was used on a building in Warsaw. So interesting that your uncle purchased the building and used it to build his house. Thank you again!
LikeLike
Just came across this interesting article today. My dad and brothers worked at Kaustine for years, from the mid 1950s through 1980’s(?). I did not realize the company had been around that long ago. I ‘m sure there are lots of their tanks around. One of the retired teachers from Keshequa has told me about her living in the park and riding on a bus with Ms. Everett to the Castile school through 2nd gr. I don’t know her maiden name, but I believe her dad had a position in the park and transferred to Hamlin(?) I think.
LikeLike